1-407-575-5392
Menu

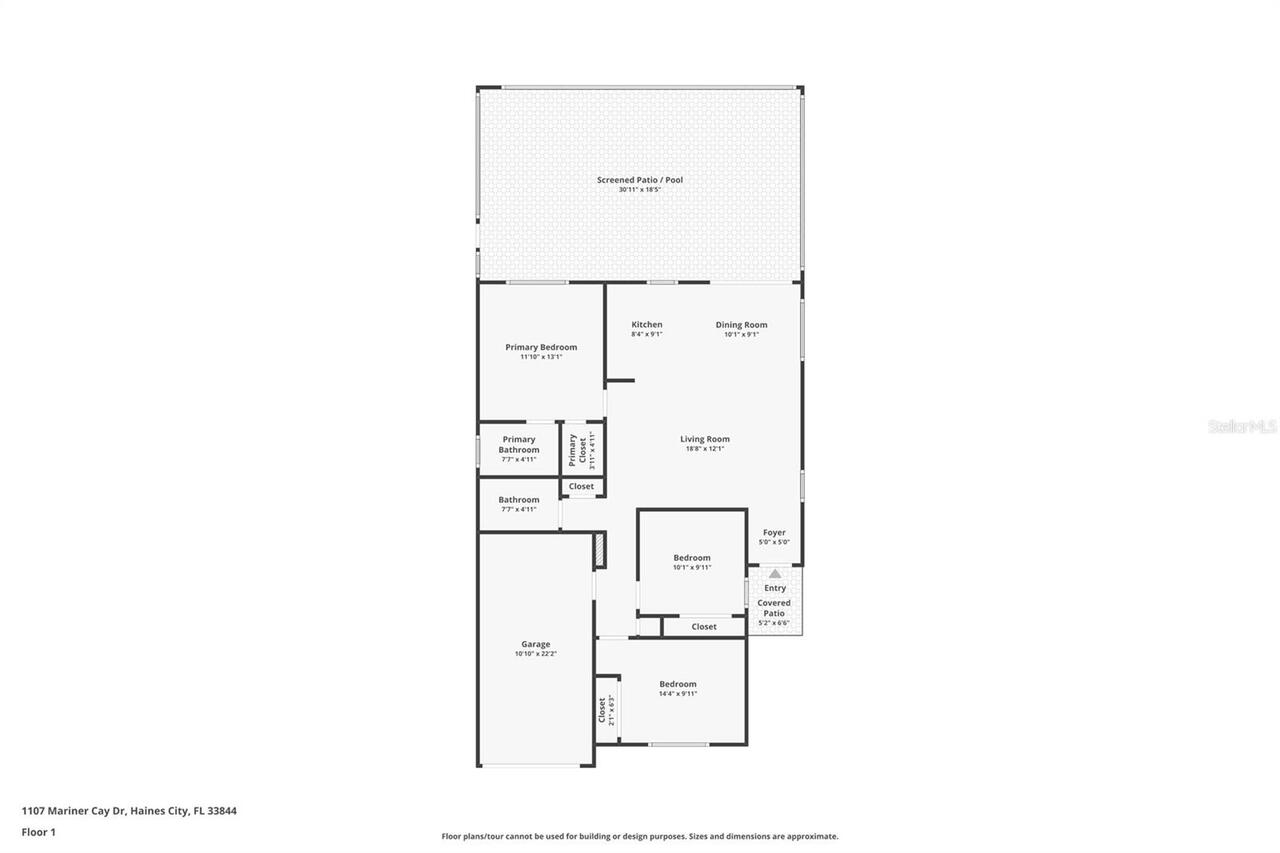
1107 Mariner Cay Drive, Haines City, FL

NEXT
PREV
$1,860

($2/sqft)

List Status: Active
1107 Mariner Cay Drive
Haines City, FL 33844


3 beds
2 baths
1130 living sqft
Top Features
  • Subdivision: Mariner Cay
  • Built in  2005
  • Single Family Residence
Description
Property Details
Additional Information
Additional Applicant Fee
50
Additional Pet Fees
$35 monthly pet rent, $250 Non-refundable pet fee/pet
Appliances
Dishwasher, Disposal, Other, Refrigerator
Application Fee
50
Association Fee Requirement
Required
Association YN
true
Attached Garage YN
true
Availability Date
2026-01-13
Bathrooms Total Integer
2
Building Area Source
Appraiser
Building Area Total
1130
Building Area Total Srch SqM
104.98
Building Area Units
Square Feet
Calculated List Price By Calculated SqFt
1.65
Carport YN
false
Cooling
Central Air
Country
US
Cumulative Days On Market
17
Current Price
1860.00
Furnished
Unfurnished
Garage Dimensions
11x22
Garage Spaces
1
Garage YN
true
Heating
Central
High School
Haines City Senior High
Interior Features
Ceiling Fans(s)
Internet Address Display YN
true
Internet Automated Valuation Display YN
false
Internet Consumer Comment YN
false
Internet Entire Listing Display YN
true
Lease Amount Frequency
Monthly
Lease Term
Twelve Months
Levels
One
List AOR
Orlando Regional
Living Area Meters
104.98
Living Area Source
Appraiser
Living Area Units
Square Feet
Long Term YN
1
Lot Size Acres
0.18
Lot Size Square Feet
7649
Lot Size Square Meters
711
Management
Full Time
Max Pet Weight
300
Middle Or Junior School
Boone Middle
Minimum Lease
1-2 Years
Modification Timestamp
2026-01-30T18:16:13.627Z
New Construction YN
false
Number Of Pets
4
Occupant Type
Vacant
Parcel Number
27-27-20-749031-000210
Pet Fee Non Refundable
250
Pet Restrictions
Total pet weight must not exceed 300 lbs for all pets (excluding cages or aquariums). These fees and restrictions do not apply to service or assistance animals. MSR will defer to pet limitations by the HOA or local ordinance if more restrictive.
Pet Size
Large (61-100 Lbs.)
Pets Allowed
Breed Restrictions, Cats OK, Dogs OK, Number Limit, Size Limit
Pool Private YN
true
Postal Code Plus 4
2494
Previous List Price
1885
Price Change Timestamp
2026-01-30T18:15:35.000Z
Property Condition
Completed
Public Remarks
This pet-friendly home features modern finishes and a functional layout with ample kitchen storage, spacious living areas, and abundant natural light throughout. The private yard offers space suitable for gardening or outdoor relaxation. Conveniently located near schools, parks, dining, and local amenities. Technology-enabled maintenance services provide added convenience, and self-touring is available daily from 8 AM to 8 PM. Application details: one-time application fee of $50 for each adult, a security deposit equal to one month’s rent, and applicable fees for pets ($250 non-refundable deposit + $35/month for each pet), pools ($150/month), septic systems ($15/month), and any applicable HOA amenity fees. This listing is broadly marketed on top-tier professional real estate syndication channels to ensure maximum exposure and quality leads. We do not advertise on unverified classified ad sites.
RATIO Current Price By Calculated SqFt
1.65
Road Surface Type
Asphalt
Room Count
7
Security Deposit
1860
Security Features
Smoke Detector(s)
Senior Community YN
false
Sewer
Public Sewer
Showing Requirements
Lock Box Coded, Lock Box No Call, See Remarks
Status Change Timestamp
2026-01-13T16:47:18.000Z
Terms Of Lease
No Smoking, Security Deposit Required
Total Annual Fees
0.00
Total Monthly Fees
0.00
Universal Property Id
US-12105-N-272720749031000210-R-N
Unparsed Address
1107 MARINER CAY DR
Utilities
Cable Available, Electricity Available, Sewer Available, Water Available
Water Source
Public
Waterfront YN
false
Neighborhood Map
Popup

Property Photos
Listing Photo
Listing Photo
Listing Photo
Listing Photo
Listing Photo
Listing Photo
Listing Photo
Listing Photo
Listing Photo
Listing Photo
Listing Photo
Listing Photo
Listing Photo
Listing Photo
Listing Photo
Listing Photo
Listing Photo
Listing Photo
Listing Photo
Listing Photo
Listing Photo
Listing Photo
Listing Photo
Listing Photo
Listing Photo
Listing Photo
Listing Photo
Listing Photo
Listing Photo
Listing Photo
Listing Photo
Listing Photo

MLS #MFRO6373361 Listing courtesy of Main Street Renewal Llc provided by Stellar MLS.

Similar Listings

$1,700
163 Hidden Lake Loop
Haines City
3BR/2BA
| Active
$1,700
140 Golf Aire Blvd
Haines City
3BR/2BA
| Active
$1,700
2216 Crown Rock Drive
Haines City
3BR/2BA
| Active
$1,750
194 Hidden Lake Loop
Haines City
3BR/2BA
| Active



All listing information is deemed reliable but not guaranteed and should be independently verified through personal inspection by appropriate professionals. Listings displayed on this website may be subject to prior sale or removal from sale; availability of any listing should always be independent verified. Listing information is provided for consumer personal, non-commercial use, solely to identify potential properties for potential purchase; all other use is strictly prohibited and may violate relevant federal and state law. The source of the listing data is as follows: Stellar MLS (updated 2/2/26 5:00 AM) |

Listing Search



Translate Tool

Featured Listings
Kissimmee Real Estate
$1,900
3 BED
2 BATH
Orlando Real Estate
$2,450
3 BED
2 BATH
Davenport Real Estate
$2,850
4 BED
3 BATH
Orlando Real Estate
$2,100
3 BED
2 BATH
Kissimmee Real Estate
$1,895
3 BED
2 BATH
Contact Wendy Morris

407-575-5392

Wendy Morris LLC

Licensed in the State of Florida
BK 3146762
16797 Broadwater Avenue
Winter Garden, Florida 34787

Your privacy is our utmost concern. We will never sell your personal information. Privacy Policy
©2026 wendymorrisrealty.com - all rights reserved. | Site Map